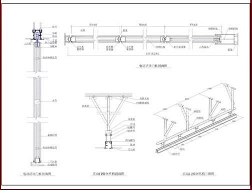
可伦电动自闭活动隔断CA80系统
(配置80型常规多向路轨或直行单向路轨及滑轮)
隔断厚度(mm):80 隔断高度(mm):≤5000
隔断宽度(mm):500~1230 隔音系数(db):35;38;45;37;30;45
防火系数(h): 1.5 小时 路轨载荷(KG/M2):500
隔板重量(KG/M2):28-45 顶底伸缩空间(mm):25
隔音材质:
47分贝以下:防火隔音棉80-120KG/M3;
47分贝及以上:双面钢板1.2mm—1.5mm,防火隔音棉100-150KG/M3
基层面板:
采用12mm厚的中纤板或玻镁板,彩钢板、三聚氰胺板和防火石膏板;
隔墙外观:
路轨及外框均采用6063-T6高硬度白色静电粉末喷涂
路轨及滑轮配置:
活动隔断墙_酒店活动隔断墙_上海酒店活动隔断墙

